京都郡苅田町・行橋市の不動産,賃貸・売買物件,アパート,マンション,一戸建て,土地,建物なら有限会社デァ・プラッツ

  ■売買 高瀬店舗 Y6-10053
         
※行橋市西宮市でゆめタウン近くの居抜き店舗・事務所
       【お役立ち情報】

■ 交 通( 最寄り駅 )

◎JR行橋駅徒歩14分


■ お買物(スーパー・コンビニ)

※ゆめタウン行橋・・・・・・・・・徒歩 4分
※ファミリーマート行橋安川通り店・徒歩 4分
※セブンイレブン行橋西宮店・・・・徒歩 7分
※ほっともっと西宮市店・・・・・・徒歩 5分
※ドラッグイレブン行橋店・・・・・徒歩 4分


■ 病 院( 外科・内科・歯科 )

※行橋中央病院・・・・・・徒歩 3分
※行橋厚生病院・・・・・・徒歩11分
 <官公・銀行・>
※行橋西宮市郵便局・・・・徒歩 7分



■ 教 育( 育児・学校区 )

※行橋カトリック幼稚園・・・・・・徒歩14分
※行橋市立行橋小学校・・・・・・・徒歩21分
※行橋市立行橋中学校・・・・・・・徒歩21分
※福岡県立京都高校・・・・・・・・徒歩14分


■□ 所 在 地 :福岡県行橋市西宮市4丁目 □■
■ 交   通 : JR行橋駅 徒歩14分
■ 土地権利 : 所有権  ■ 地   目 : 宅地
■ 都市計画 : 都市計画区域内  ■ 用途地域 : 
■ 建ぺい率 : 70%  ■ 容 積 率 : 300%
■ 地   勢 : ?�・
■ 引渡条件 : 
■ 現   況 : 営業中  ■ 引 渡 日 : 相談
■ 設   備 : 電気・ガス・上・下水道・給湯・エアコン・
■ 接道状況 : 

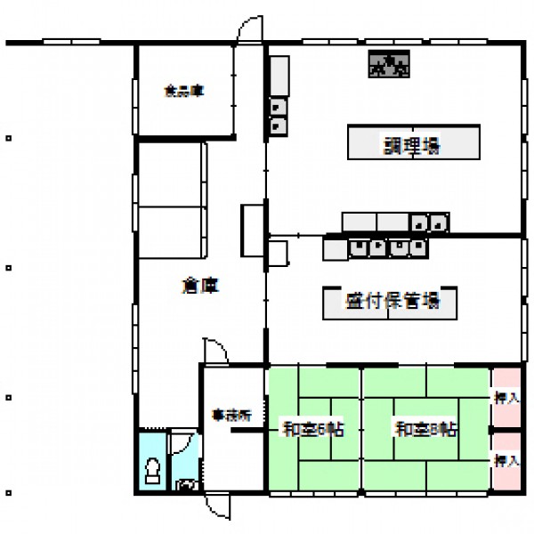
 ※行橋市西宮市で木造平屋造りの設備付き店舗・事務所

 ※行橋市西宮市で土地130.27坪の店舗・事務所

 ※行橋市西宮市で建物61.8坪の店舗・事務所
 

〒800-0344
福岡県京都郡苅田町新津1丁目11−38
TEL:0930-26-8822 FAX:0930-26-8821

お問い合わせ

お問い合わせ

ペット可物件

ペット可物件

ペット可物件

敷金・礼金ゼロ

ペット可物件

敷金・礼金5万円以下

ペット可物件

敷金・礼金10万円以下

有限会社デァ・プラッツ
苅田・行橋の不動産
アパート・マンションなど賃貸物件、 土地・建物などの売買物件ならお任せください。